Šilerova 52
-
Kontakt telefon
+381 63 8479 414 -
Email Adresa
partner.projekt.doo@gmail.com -
Adresa
Karlovacka 46 , Zemun
STAMBENA ZGRADA – ŠILEROVA 52
Novogradnja u Zemunu, ulica Šilerova 52, stambeno poslovni objekat spratnosti Po + P r + 2 + Ps.Objekat se nalazi na opštini Zemun u izuzetno mirnom kraju i prijatnom okruženju. Smešten u mirnom delu Zemuna. Kvalitetna gradnja, više struktura stanova, dobra izolacija, klima uređaji, lift u zgradi…
Pozicionairan u blizini svih bitnih saobraćajnica pa svojim novim stanarima omogućava odličnu povezanost sa svim delovima grada. Odlična lokacija u Zemunu. Blizina vrtića, škole, doma zdravlja, odlična povezanost. U blizini objekta takođe se nalaze supermarketi, pošta, apoteke, pijaca…
TABELARNI PRIKAZ STRUKTURE OBJEKTA
Objekat je u izgradnji. Planirani rok završetka je 03/2024.g
| Sprat | Broj stana | Površina (m2) | Cena sa PDV-om | Struktura | Status | Nacrt stana |
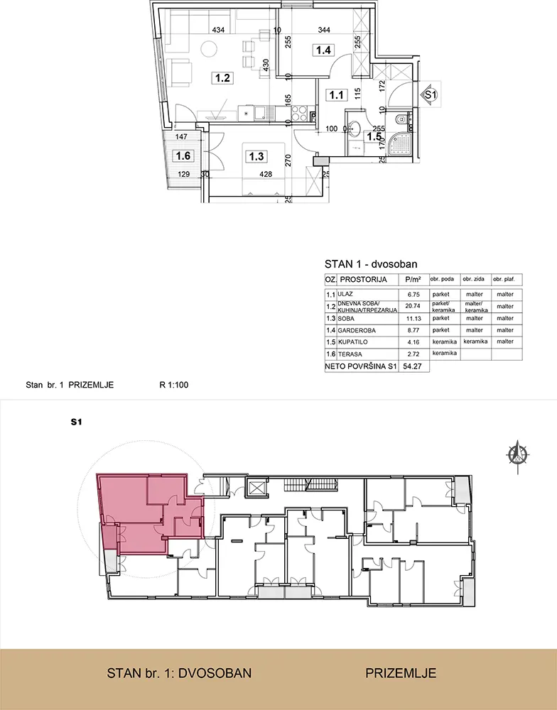
| Prizemlje | Stan 01 | 54.27 | 2640 €/m2 | dvosoban | Prodato | Pogledajte nacrt |
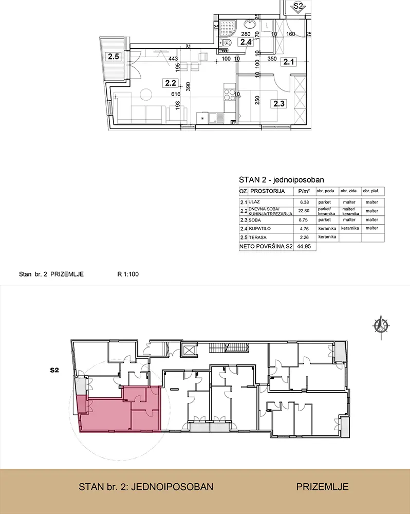
| Prizemlje | Stan 02 | 44.95 | 2640 €/m2 | jednoiposoban | Prodato | Pogledajte nacrt |
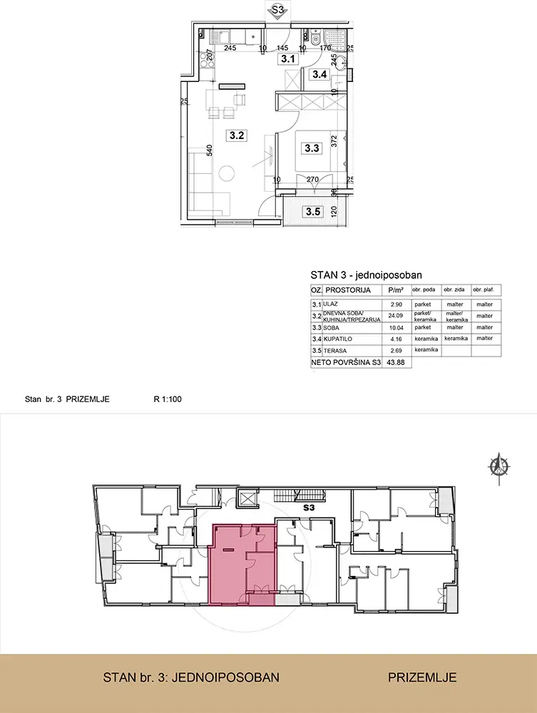
| Prizemlje | Stan 03 | 43.88 | 2640 €/m2 | jednoiposoban | Prodato | Pogledajte nacrt |
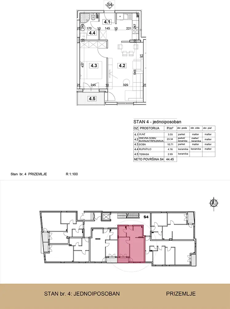
| Prizemlje | Stan 04 | 44.45 | 2640 €/m2 | jednoiposoban | Prodato | Pogledajte nacrt |
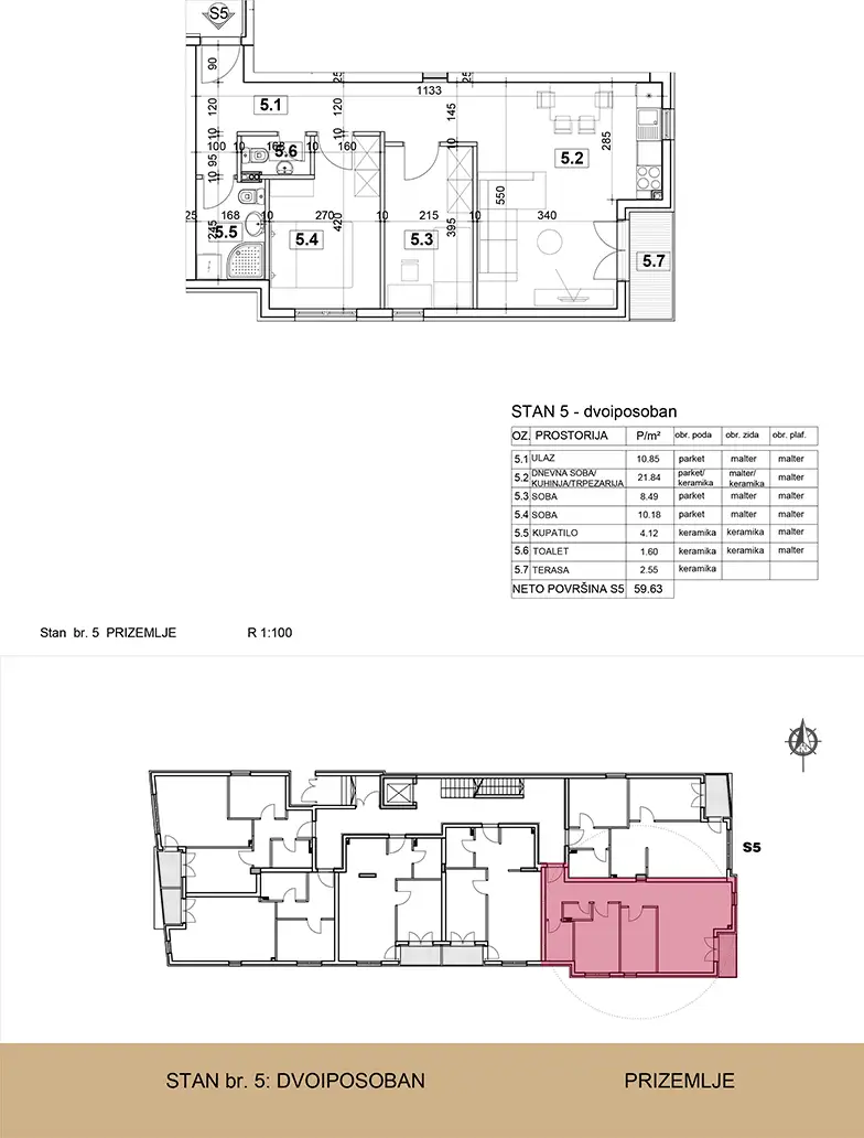
| Prizemlje | Stan 05 | 59.63 | 2640 €/m2 | dvoiposoban | Prodato | Pogledajte nacrt |
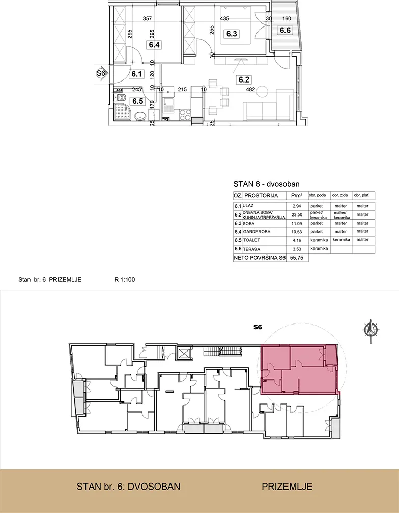
| Prizemlje | Stan 06 | 55.75 | 2640 €/m2 | dvosoban | Prodato | Pogledajte nacrt |
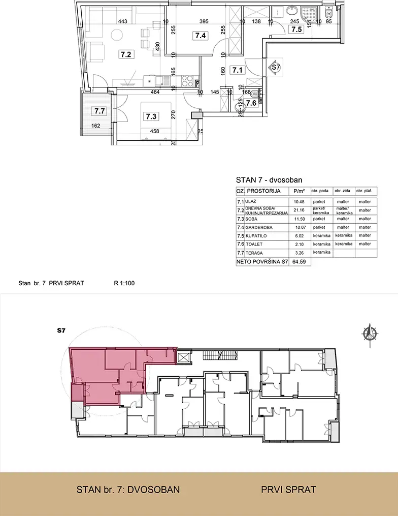
| I sprat | Stan 07 | 64.59 | 2640 €/m2 | dvosoban | Prodato | Pogledajte nacrt |
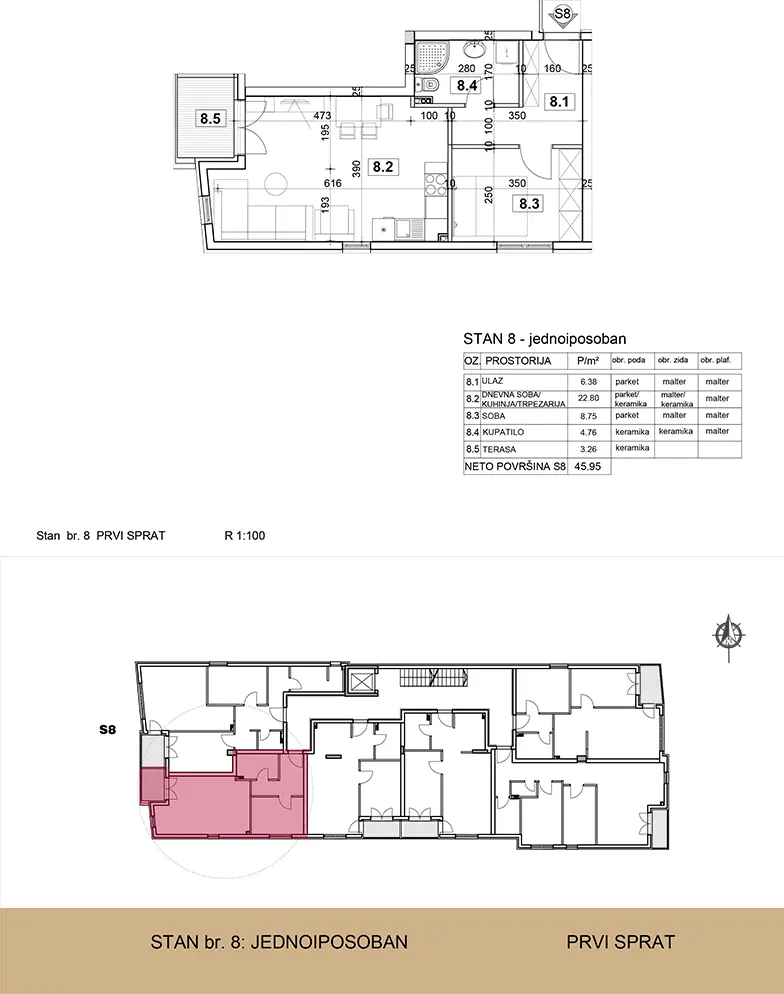
| I sprat | Stan 08 | 45.95 | 2640 €/m2 | jednoiposoban | Prodato | Pogledajte nacrt |
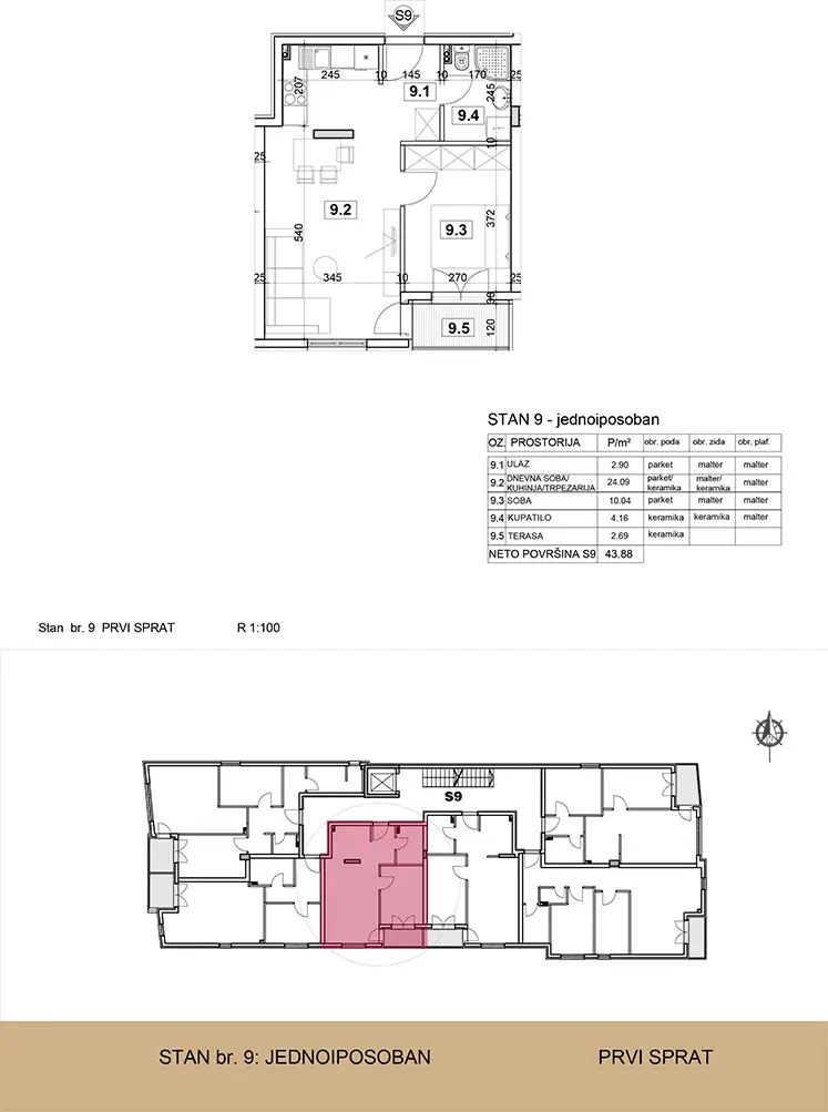
| I sprat | Stan 09 | 43.88 | 2640 €/m2 | jednoiposoban | Prodato | Pogledajte nacrt |
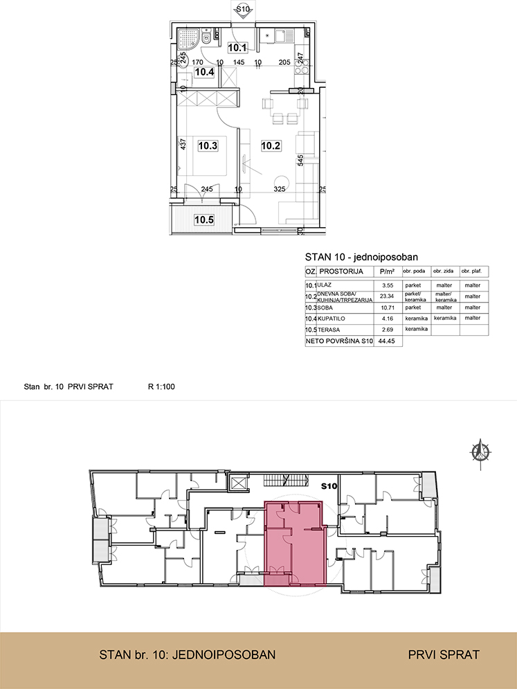
| I sprat | Stan 10 | 44.45 | 2640 €/m2 | jednoiposoban | Prodato | Pogledajte nacrt |
| I sprat | Stan 11 | 59.63 | 2640 €/m2 | dvoiposoban | Prodato | Pogledajte nacrt |
| I sprat | Stan 12 | 55.75 | 2640 €/m2 | dvosoban | Prodato | Pogledajte nacrt |
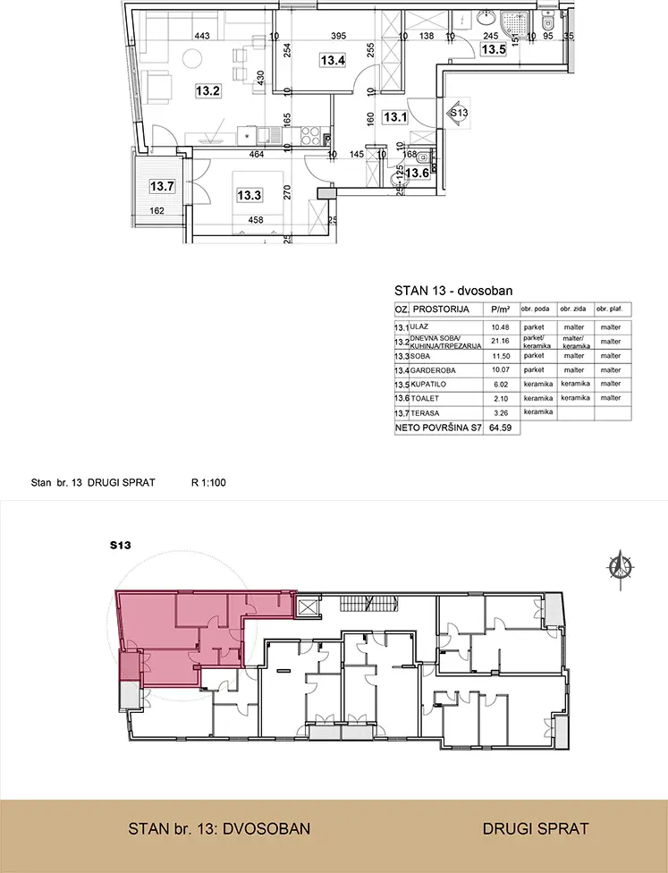
| II sprat | Stan 13 | 64.59 | 2640 €/m2 | dvosoban | Prodato | Pogledajte nacrt |
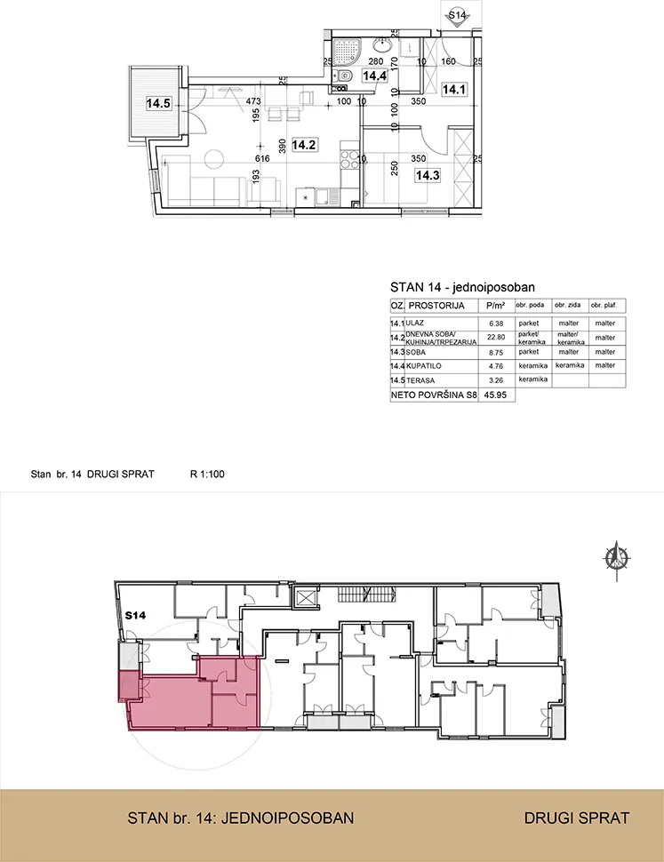
| II sprat | Stan 14 | 45.95 | 2640 €/m2 | jednoiposoban | Prodato | Pogledajte nacrt |
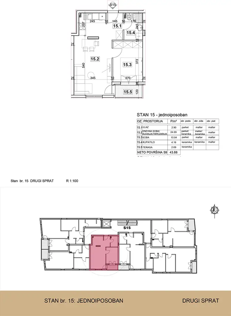
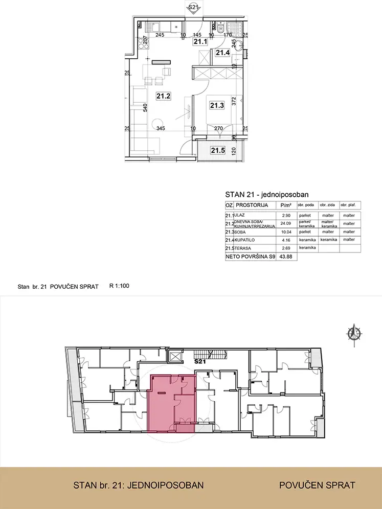
| II sprat | Stan 15 | 43.88 | 2640 €/m2 | jednoiposoban | Prodato | Pogledajte nacrt |
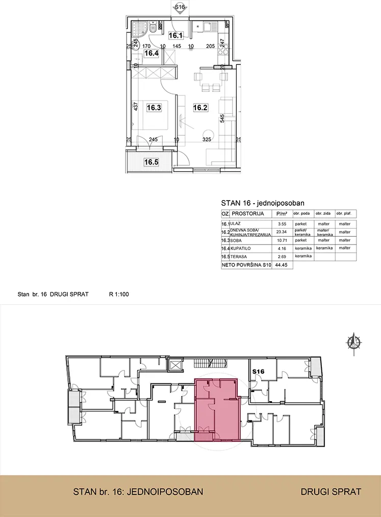
| II sprat | Stan 16 | 44.45 | 2640 €/m2 | jednoiposoban | Prodato | Pogledajte nacrt |
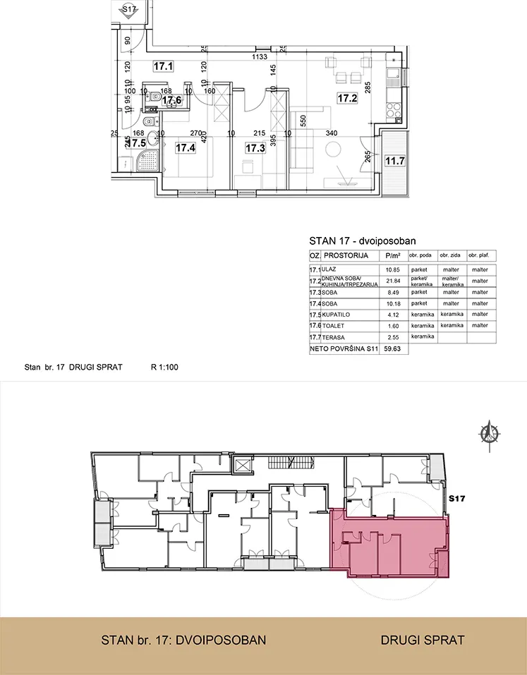
| II sprat | Stan 17 | 59.63 | 2640 €/m2 | dvoiposoban | Prodato | Pogledajte nacrt |
| II sprat | Stan 18 | 55.75 | 2640 €/m2 | dvosoban | Prodato | Pogledajte nacrt |
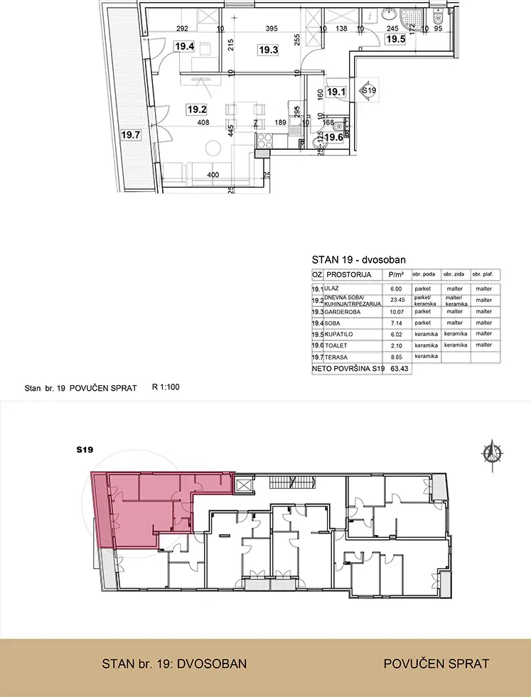
| Povučen sprat | Stan 19 | 63.43 | 2640 €/m2 | dvosoban | Prodato | Pogledajte nacrt |
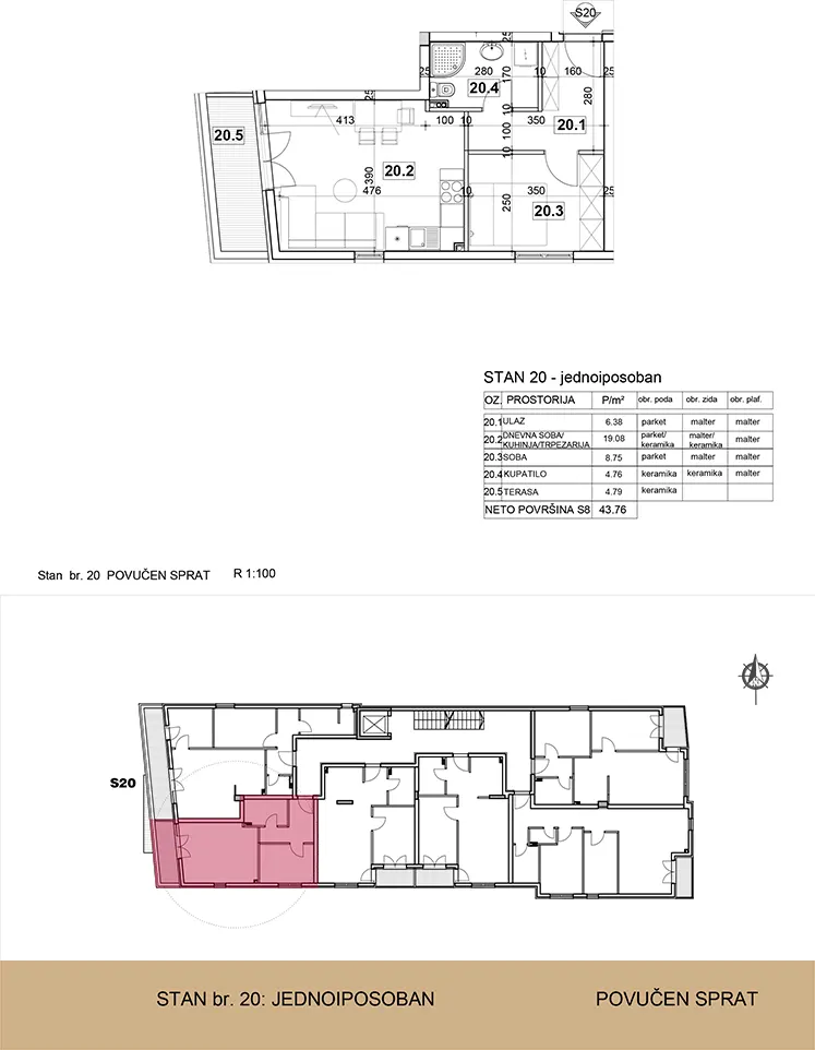
| Povučen sprat | Stan 20 | 43.76 | 2640 €/m2 | jednoiposoban | Prodato | Pogledajte nacrt |
| Povučen sprat | Stan 21 | 43.88 | 2640 €/m2 | jednoiposoban | Prodato | Pogledajte nacrt |
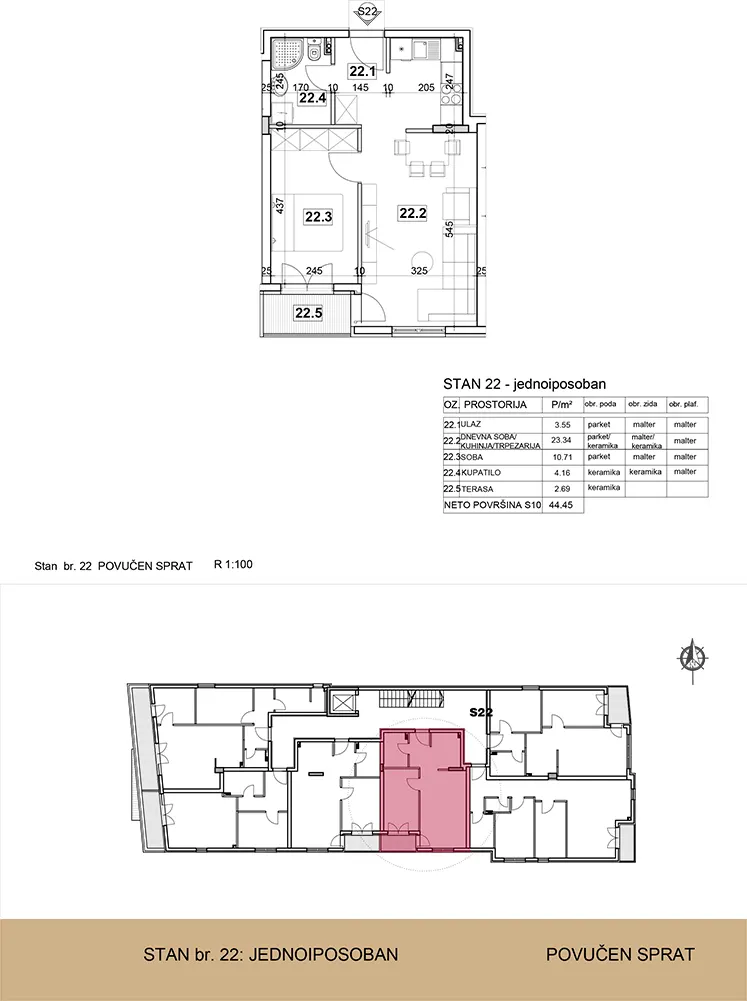
| Povučen sprat | Stan 22 | 44.45 | 2640 €/m2 | jednoiposoban | Prodato | Pogledajte nacrt |
| Povučen sprat | Stan 23 | 59.63 | 2640 €/m2 | dvoiposoban | Prodato | Pogledajte nacrt |
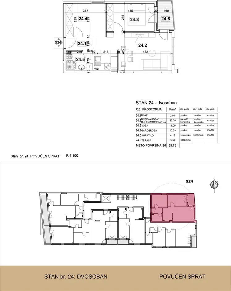
| Povučen sprat | Stan 24 | 55.75 | 2640 €/m2 | dvosoban | Prodato | Pogledajte nacrt |
2D I 3D PRIKAZ STANOVA
| STAN TIP 1 | m² |
|---|---|
| ULAZ | 6.75m² |
| DNEVNA SOBA/ KUHINJA/TRPEZARIJA | 20.66m² |
| SOBA | 11.19m² |
| SOBA | 8.77m² |
| KUPATILO | 4.02m² |
| TERASA | 2.72m² |
| POVRŠINA STANA | 54.11m² |
| STAN TIP 2 | m² |
|---|---|
| ULAZ | 6.38m² |
| DNEVNA SOBA/ KUHINJA/TRPEZARIJA | 22.37m² |
| SOBA | 9.12m² |
| KUPATILO | 4.67m² |
| TERASA | 2.26m² |
| POVRŠINA STANA | 44.80m² |
| STAN TIP 4 | m² |
|---|---|
| ULAZ | 3.55m² |
| DNEVNA SOBA/ KUHINJA/TRPEZARIJA |
23.44m² |
| SOBA | 10.71m² |
| SOBA | 4.07m² |
| KUPATILO | 2.69m² |
| POVRŠINA STANA | 44.46m² |
| STAN TIP 5 | m² |
|---|---|
| ULAZ | 10.85m² |
| DNEVNA SOBA/ KUHINJA/TRPEZARIJA |
21.78m² |
| SOBA | 8.49 m² |
| SOBA | 10.19 m² |
| KUPATILO | 4.07m² |
| TOALET | 1.56m² |
| TERASA | 2.55m² |
| POVRŠINA STANA | 59.49m² |
| STAN TIP 7 | m² |
|---|---|
| ULAZ | 10.48m² |
| DNEVNA SOBA/ KUHINJA/TRPEZARIJA | 21.09m² |
| SOBA | 11.63m² |
| SOBA | 10.07 m² |
| KUPATILO | 5.90 m² |
| TOALET | 1.95 m² |
| TERASA | 3.26 m² |
| POVRŠINA STANA | 64.38m² |
| STAN TIP 8 | m² |
|---|---|
| ULAZ | 6.38m² |
| DNEVNA SOBA/ KUHINJA/TRPEZARIJA |
22.37m² |
| SOBA | 9.12m² |
| KUPATILO | 4.67m² |
| TERASA | 3.26m² |
| POVRŠINA STANA | 45.80m² |