Rada Končara 96
-
Kontakt telefon
+381 63 8479 414 -
Email Adresa
partner.projekt.doo@gmail.com -
Adresa
Karlovacka 46 , Zemun
STAMBENO POSLOVNI OBJEKAT – RADA KONČARA 96
Novogradnja u Zemunu, na adresi Rada Končara 96, predstavlja moderan stambeno-poslovni objekat koji se deli na dva dela.
I objekat je spratnosti Po+P+3.
Smešten u srcu Zemuna, ovaj kompleks pruža idealan spoj urbanog života i poslovnih mogućnosti. Okružen zelenilom i blizinom svih ključnih sadržaja, poput škola, vrtića, prodavnica i restorana, ovaj objekat nudi sve što je potrebno za udoban i praktičan život. Njegova arhitektura savršeno se uklapa u okruženje, pružajući moderan dizajn i funkcionalnost.
Uživajte u životu na jednoj od najatraktivnijih lokacija u Zemunu, gde je svaki detalj pažljivo osmišljen da zadovolji vaše potrebe i pruži vam maksimalan komfor i kvalitet.
CENA STANOVA
Cena stana je 2800€m2 + PDV
Parking mesto iznosi 12000€ sa PDV-om
Garažno mesto iznosi 18000€ sa PDV-om
TABELARNI PRIKAZ STRUKTURE OBJEKTA
Objekat je u izgradnji. Planirani rok završetka je 09/2026.g
| Sprat | Broj stana | Površina (m2) | Cena | Status | Nacrt stana | |
| Podrum+pr. | Lokal 01 | 75.53 | 2.800€/m2 | dve etaže | Slobodan | Pogledajte nacrt |
| Podrum+pr. | Lokal 02 | 75.56 | 2.800€/m2 | dve etaže | Slobodan | Pogledajte nacrt |
| Prizemlje | P. prostor 01 | 49.27 | 2.800€/m2 | lokal | Prodato | Pogledajte nacrt |
| Prizemlje | P. prostor 02 | 39.35 | 2.800€/m2 | lokal | Prodato | Pogledajte nacrt |
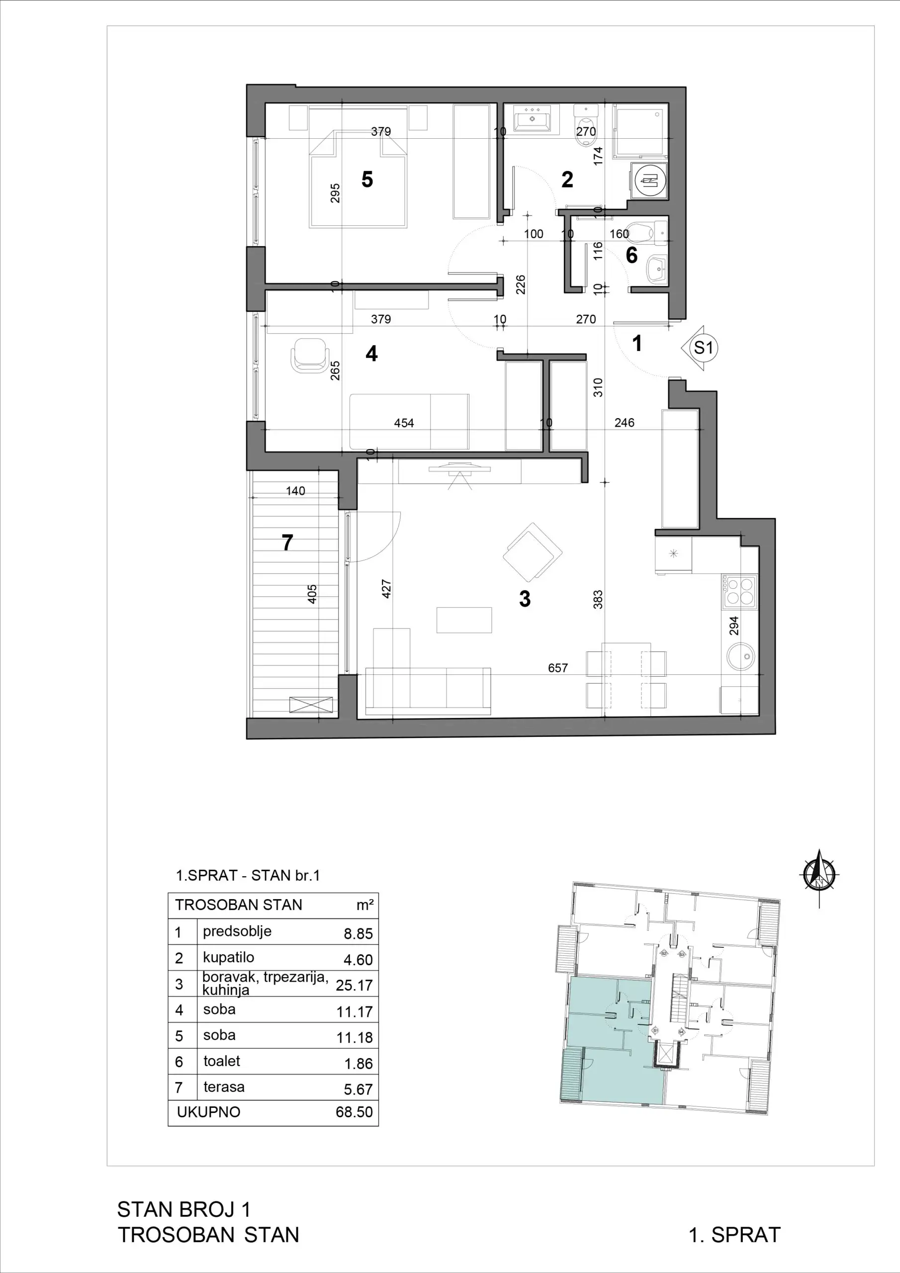
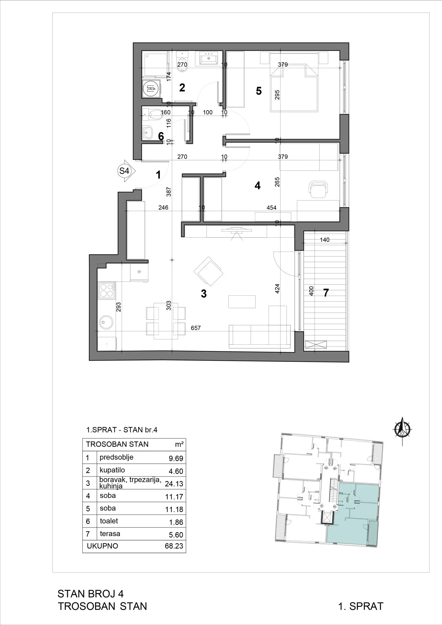
| I sprat | Stan 01 | 68.50 | 2.800€/m2 | trosoban | Prodato | Pogledajte nacrt |
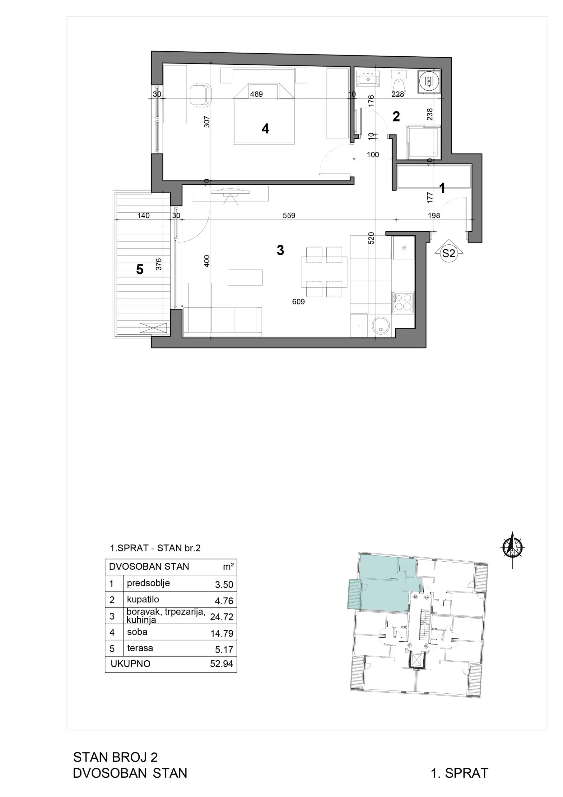
| I sprat | Stan 02 | 52.94 | 2.800€/m2 | dvosoban | Prodato | Pogledajte nacrt |
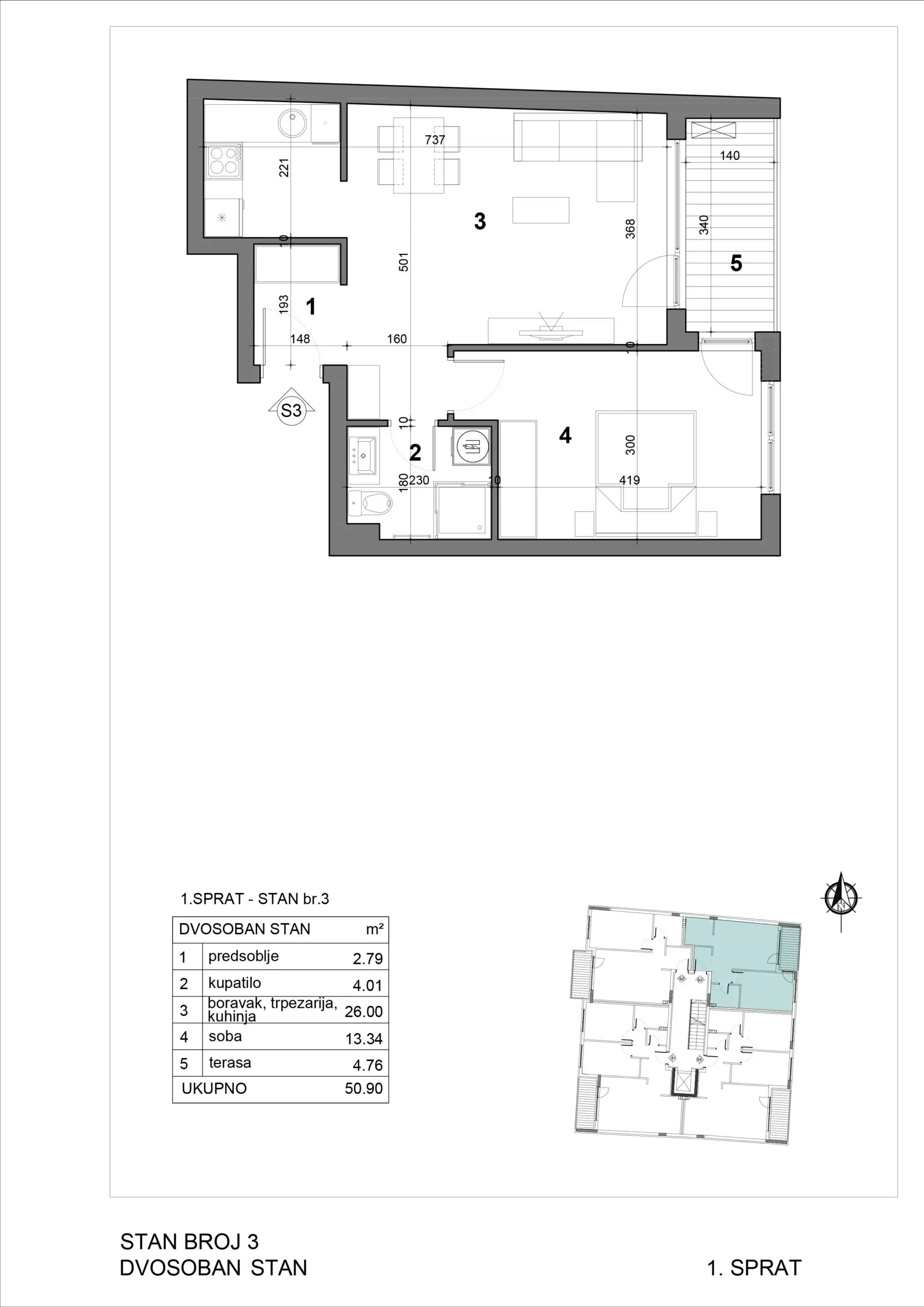
| I sprat | Stan 03 | 50.90 | 2.800€/m2 | dvosoban | Prodato | Pogledajte nacrt |
| I sprat | Stan 04 | 68.23 | 2.800€/m2 | trosoban | Prodato | Pogledajte nacrt |
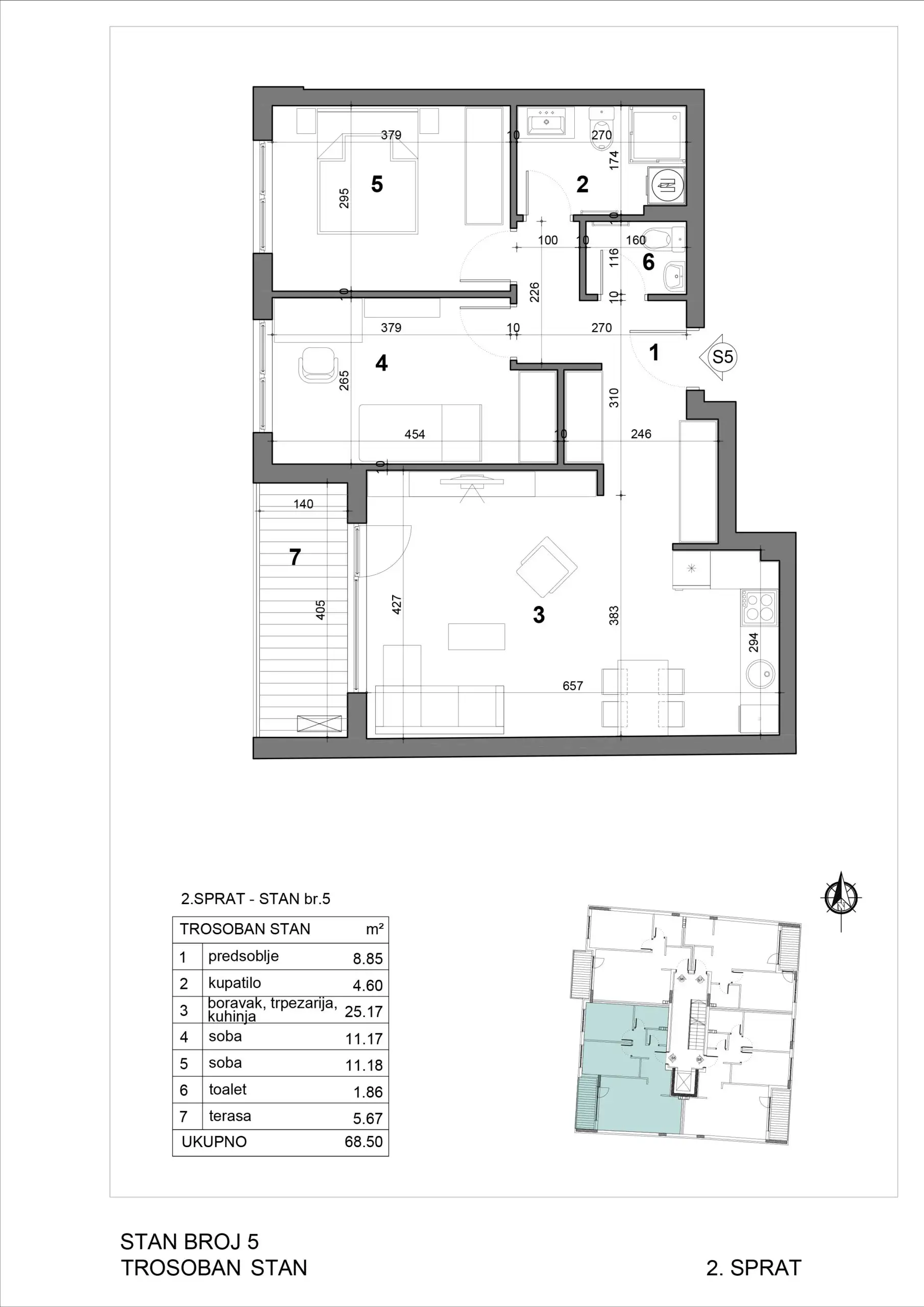
| II sprat | Stan 05 | 68.50 | 2.800€/m2 | trosoban | Prodato | Pogledajte nacrt |
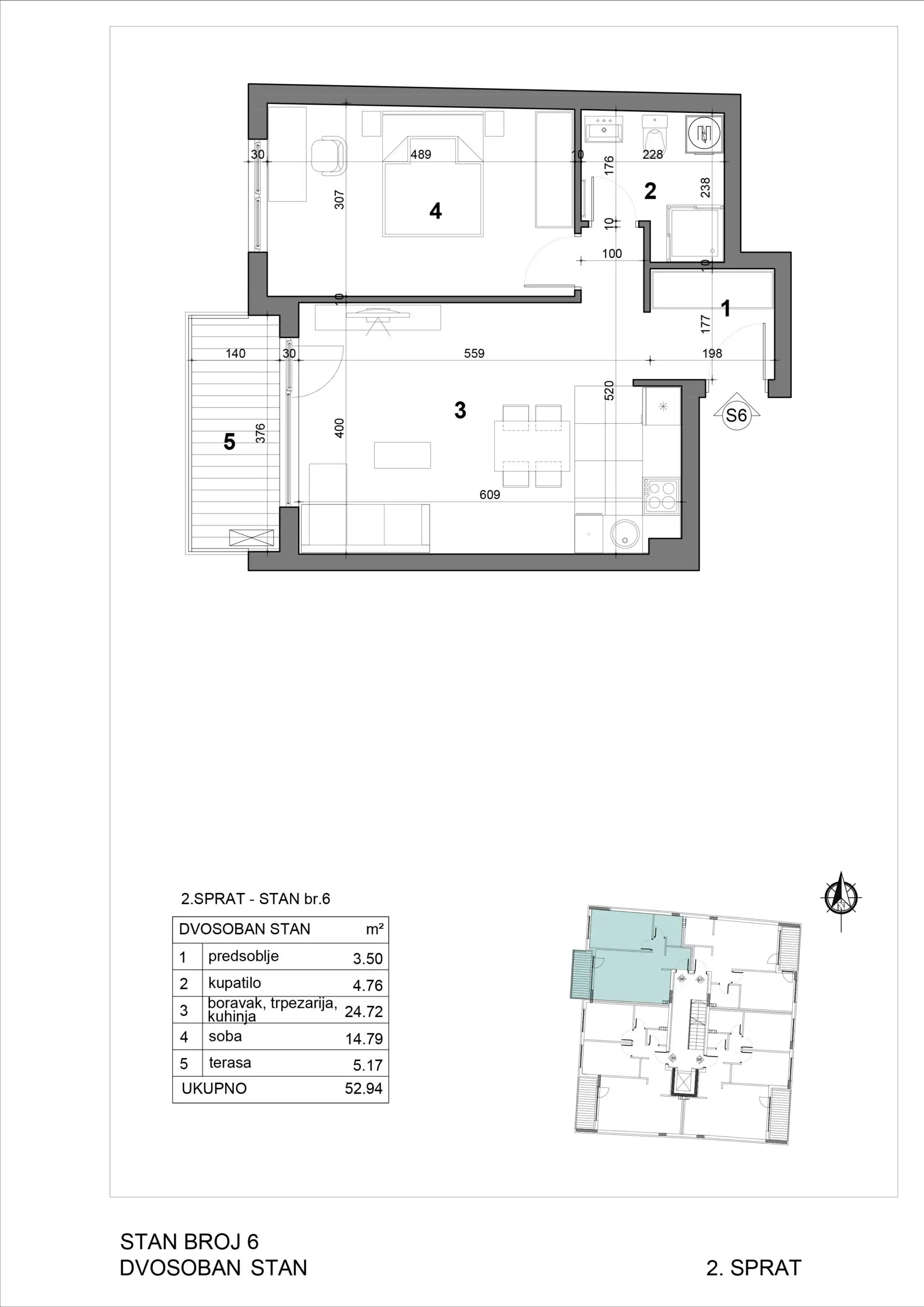
| II sprat | Stan 06 | 52.94 | 2.800€/m2 | dvosoban | Prodato | Pogledajte nacrt |
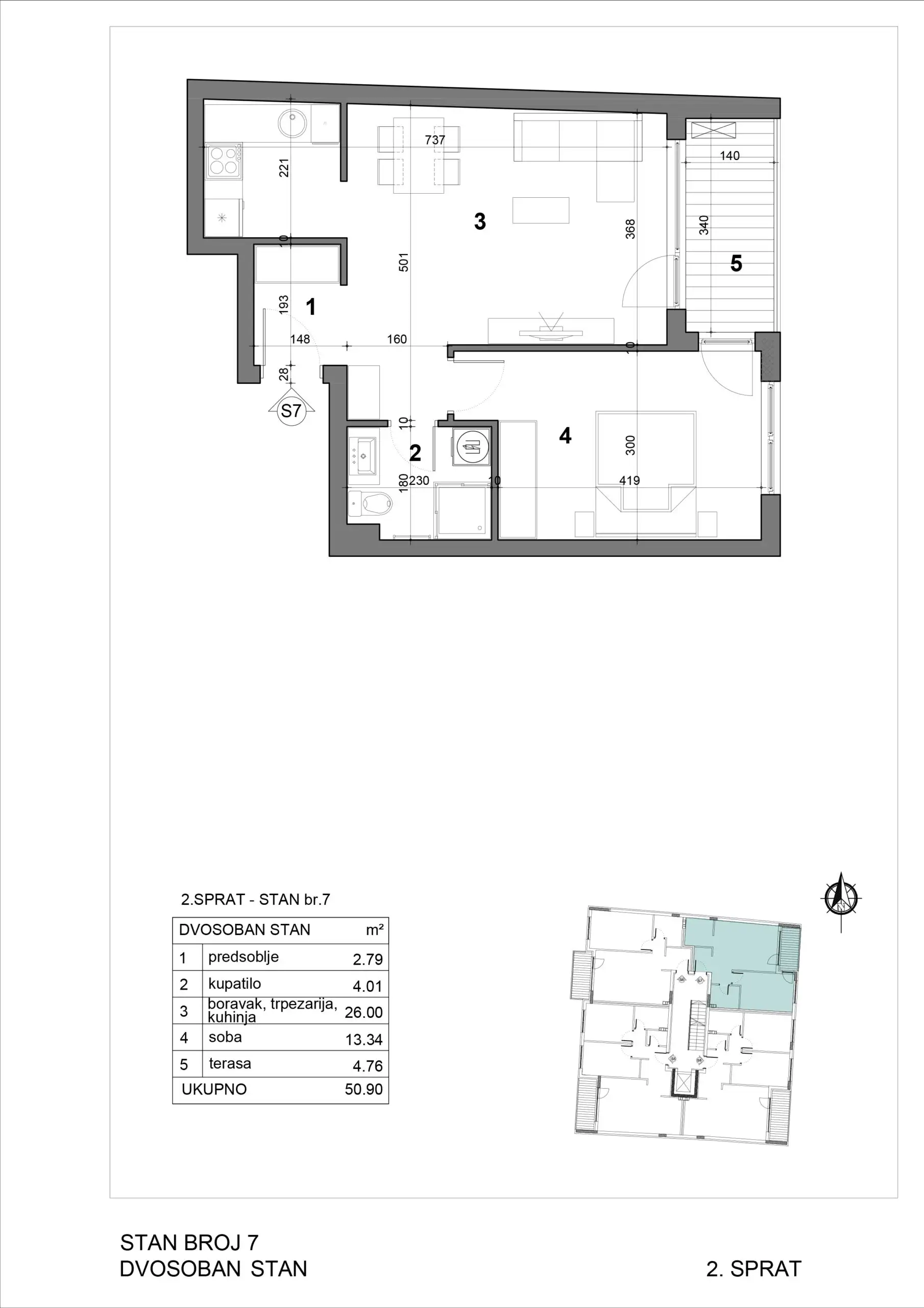
| II sprat | Stan 07 | 50.90 | 2.800€/m2 | dvosoban | Prodato | Pogledajte nacrt |
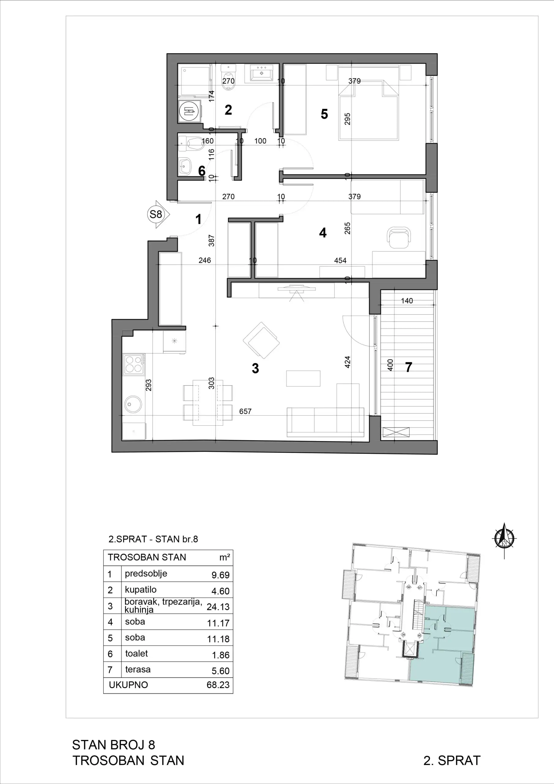
| II sprat | Stan 08 | 68.23 | 2.800€/m2 | trosoban | Prodato | Pogledajte nacrt |
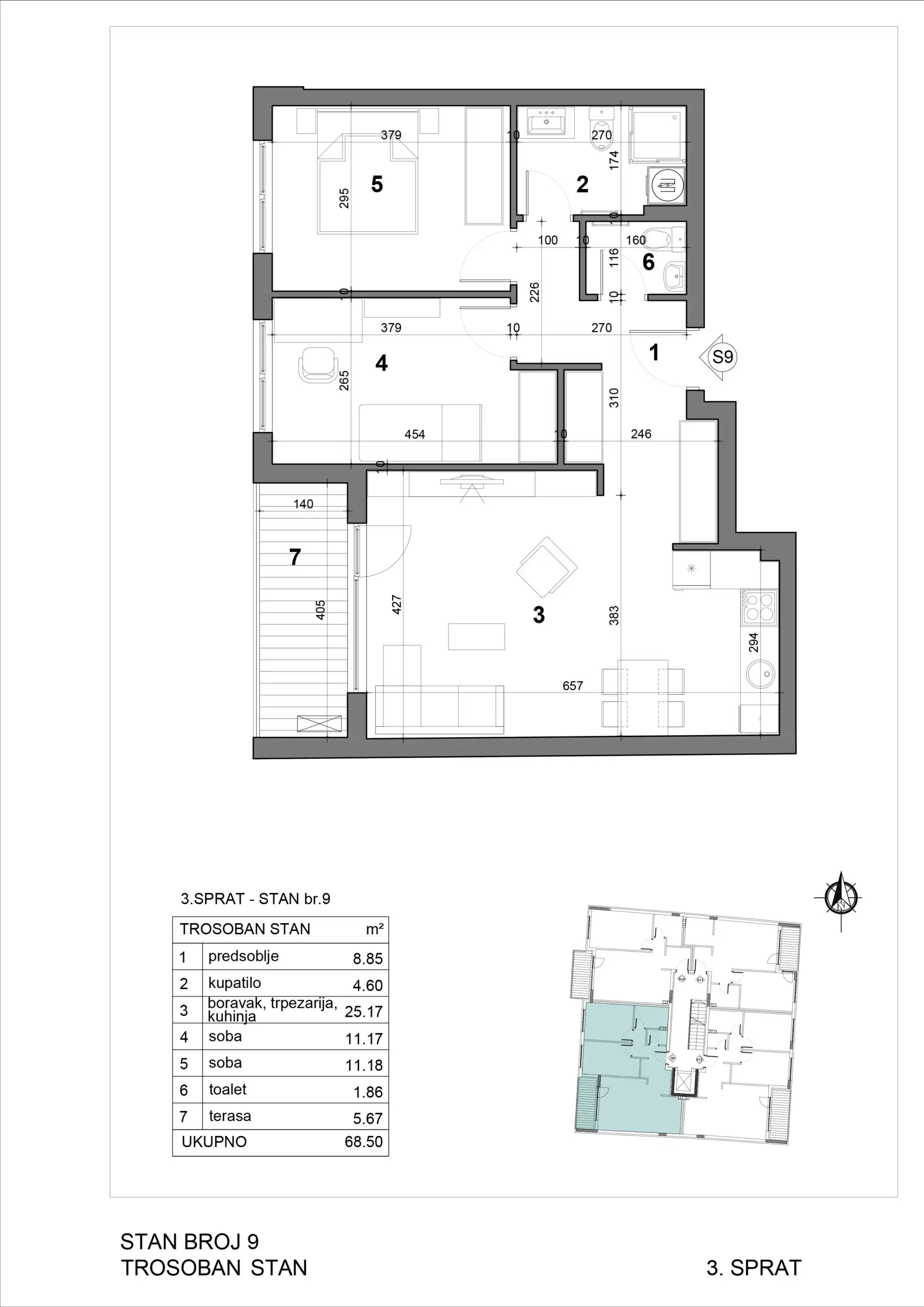
| III sprat | Stan 09 | 68.50 | 2.800€/m2 | trosoban | Prodato | Pogledajte nacrt |
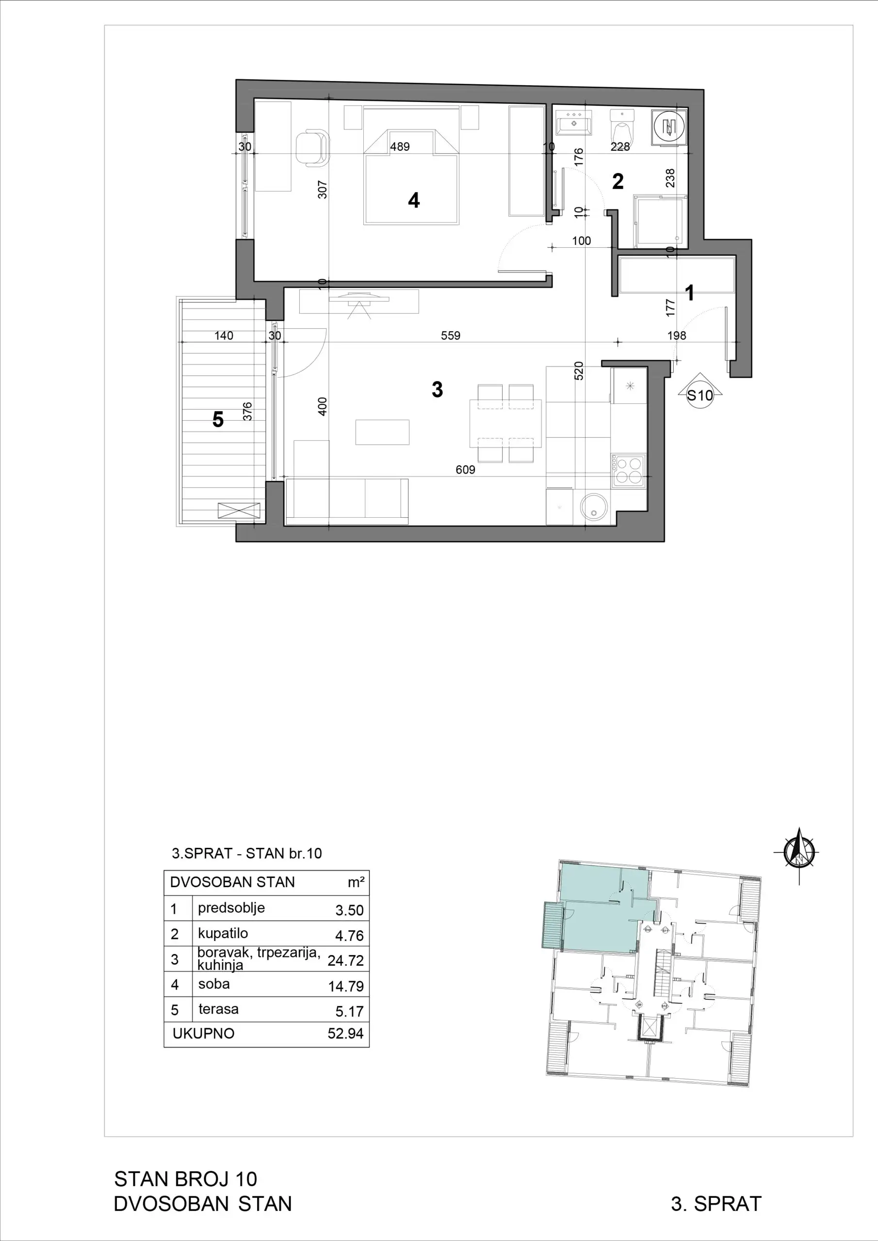
| III sprat | Stan 10 | 52.94 | 2.800€/m2 | dvosoban | Prodato | Pogledajte nacrt |
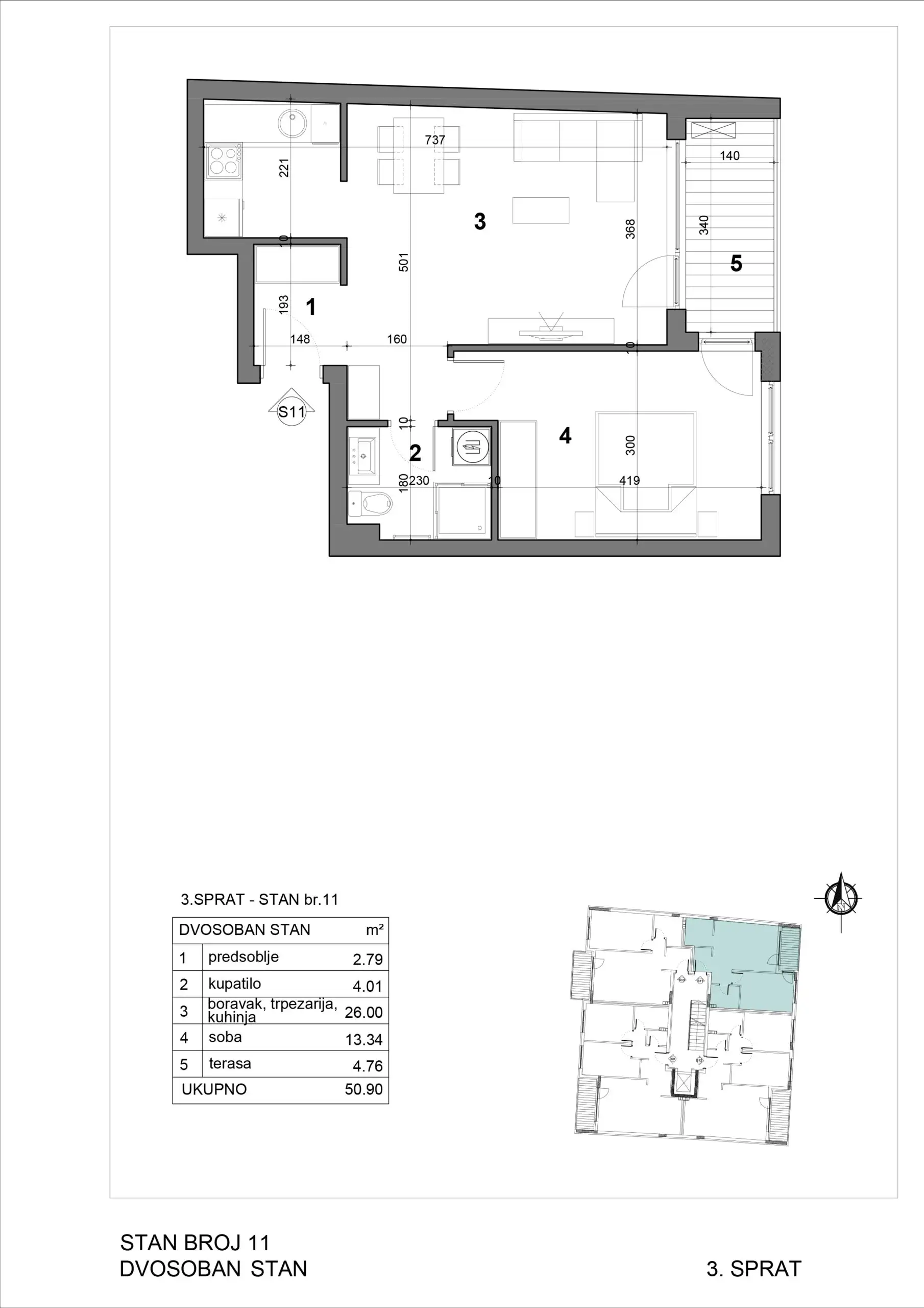
| III sprat | Stan 11 | 50.90 | 2.800€/m2 | dvosoban | Prodato | Pogledajte nacrt |
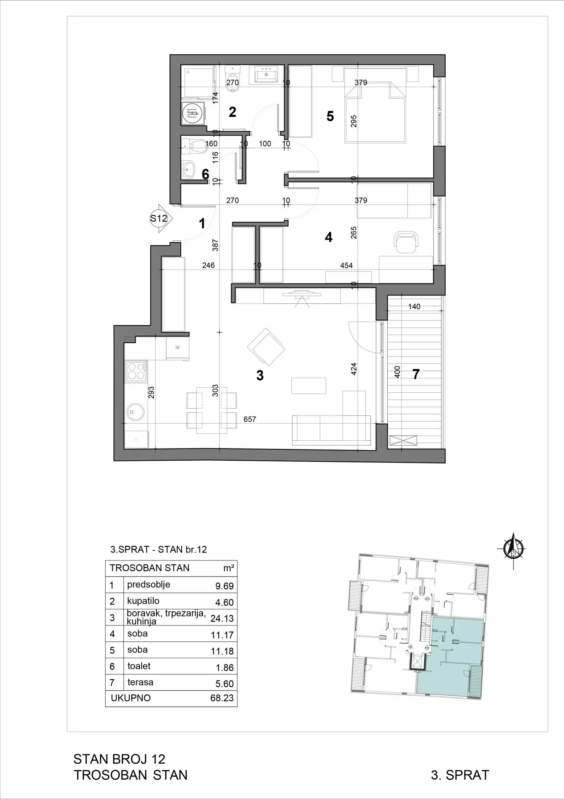
| III sprat | Stan 12 | 68.23 | 2.800€/m2 | trosoban | Prodato | Pogledajte nacrt |
| POV. sprat | Stan 13 | 47.33 | 2.800€/m2 | jednoiposoban | Prodato | Pogledajte nacrt |
| POV. sprat | Stan 14 | 57.62 | 2.800€/m2 | dvosoban | Prodato | Pogledajte nacrt |
| POV. sprat | Stan 15 | 49.64 | 2.800€/m2 | dvosoban | Prodato | Pogledajte nacrt |
| POV. sprat | Stan 16 | 58.43 | 2.800€/m2 | dvosoban | Prodato | Pogledajte nacrt |