Cara Dušana 110
-
Kontakt telefon
+381 63 8479 414 -
Email Adresa
partner.projekt.doo@gmail.com -
Adresa
Karlovacka 46 , Zemun
STAMBENO POSLOVNI OBJEKAT – CARA DUŠANA 110
2.800e+pdv
Novogradnja u Zemunu, na adresi Cara Dušana 110, predstavlja moderan stambeno-poslovni objekat koji se deli na dva dela.
I objekat je spratnosti Po+P+3+PS, dok je II objekat spratnosti Po+P+1.
Smešten u srcu Zemuna, ovaj kompleks pruža idealan spoj urbanog života i poslovnih mogućnosti. Okružen zelenilom i blizinom svih ključnih sadržaja, poput škola, vrtića, prodavnica i restorana, ovaj objekat nudi sve što je potrebno za udoban i praktičan život. Njegova arhitektura savršeno se uklapa u okruženje, pružajući moderan dizajn i funkcionalnost.
Uživajte u životu na jednoj od najatraktivnijih lokacija u Zemunu, gde je svaki detalj pažljivo osmišljen da zadovolji vaše potrebe i pruži vam maksimalan komfor i kvalitet.
CENA STANOVA
Cena stana je 2800 €/m2 + PDV
Garažno mesto iznosi 15000€ sa PDV-om
TABELARNI PRIKAZ STRUKTURE OBJEKTA
Objekat je u izgradnji. Planirani rok završetka je 12/2025.g
| Sprat | Broj stana | Površina (m2) | Status | Nacrt stana | ||
| OBJEKAT I | ||||||
| Pr. - poslovni prostor | 144.23 | 2200€/m2 | 3 etaže | Prodato | Pogledajte nacrt | |
| I sprat | Stan 01 | 44.25 | 2600€/m2 | jednoiposoban | Prodato | Pogledajte nacrt |
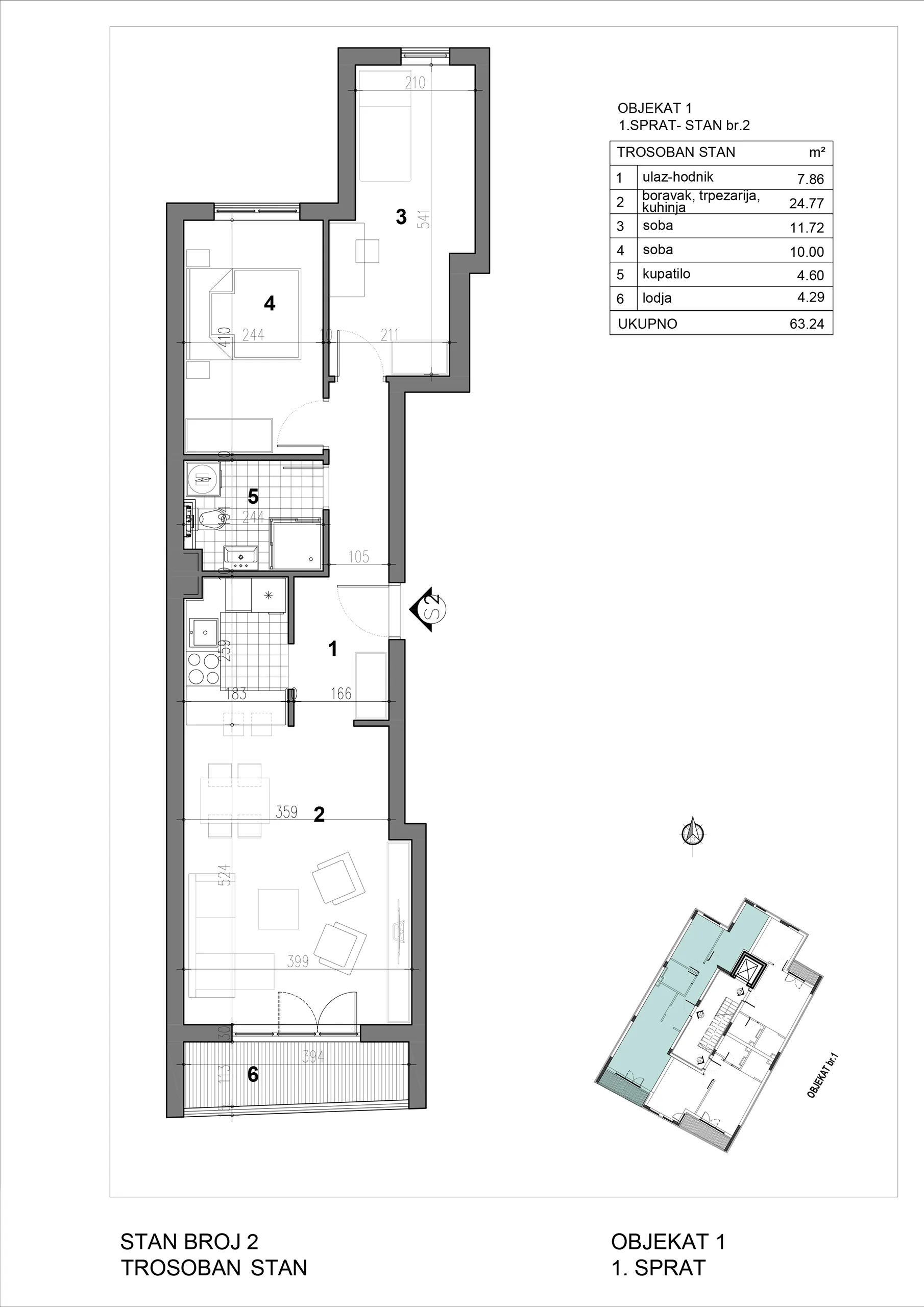
| I sprat | Stan 02 | 63.24 | 2800€/m2 | trosoban | Prodato | Pogledajte nacrt |
| II sprat | Stan 03 | 37.26 | 2600€/m2 | jednoiposoban | Prodato | Pogledajte nacrt |
| II sprat | Stan 04 | 44.25 | 2600€/m2 | jednoiposoban | Prodato | Pogledajte nacrt |
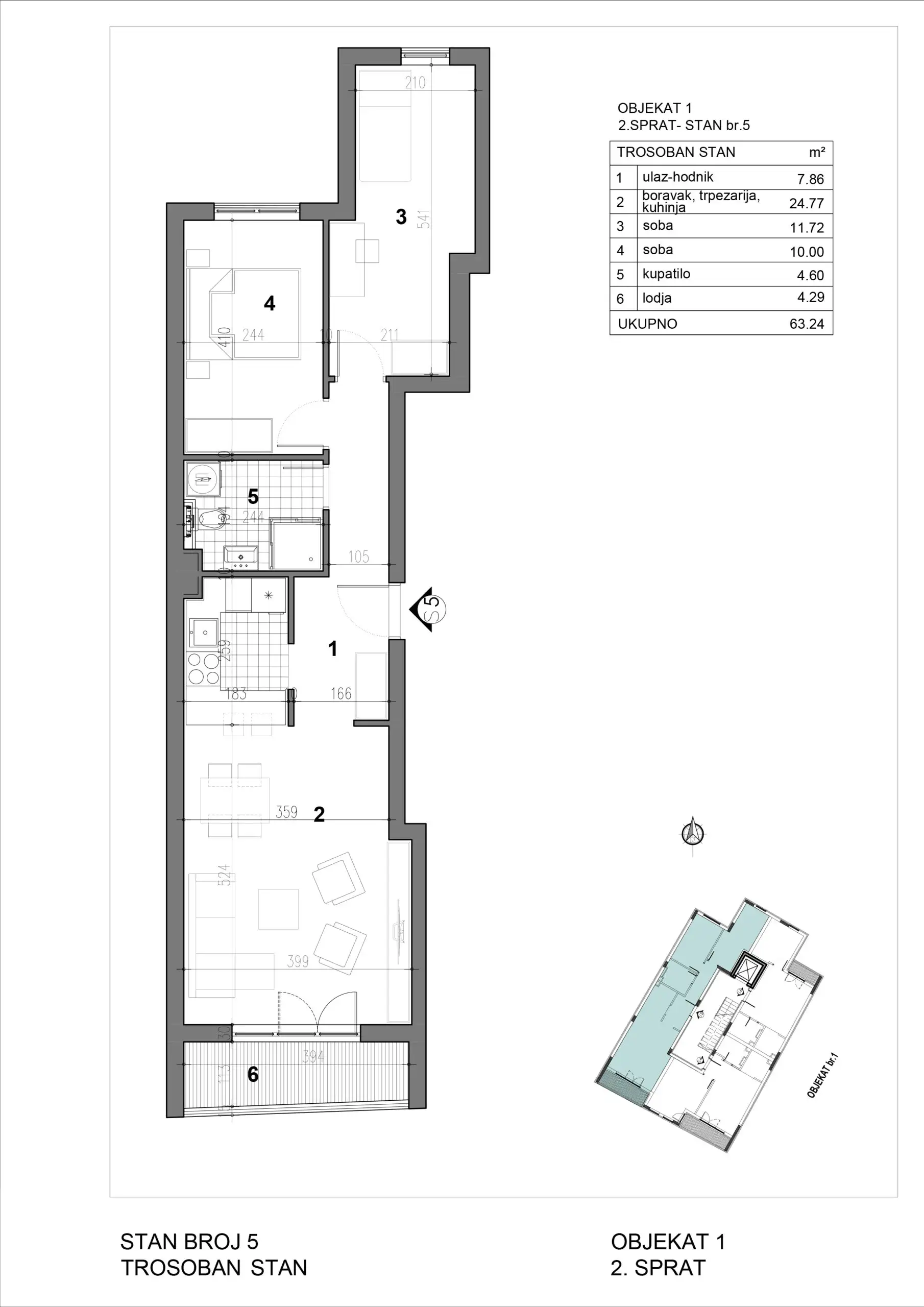
| II sprat | Stan 05 | 63.24 | 2600€/m2 | trosoban | Prodato | Pogledajte nacrt |
| II sprat | Stan 06 | 37.26 | 2600€/m2 | jednoiposoban | Prodato | Pogledajte nacrt |
| III sprat | Stan 07 | 44.25 | 2600€/m2 | jednoiposoban | Prodato | Pogledajte nacrt |
| III sprat | Stan 08 | 63.24 | 2600€/m2 | trosoban | Prodato | Pogledajte nacrt |
| III sprat | Stan 09 | 37.26 | 2600€/m2 | jednoiposoban | Prodato | Pogledajte nacrt |
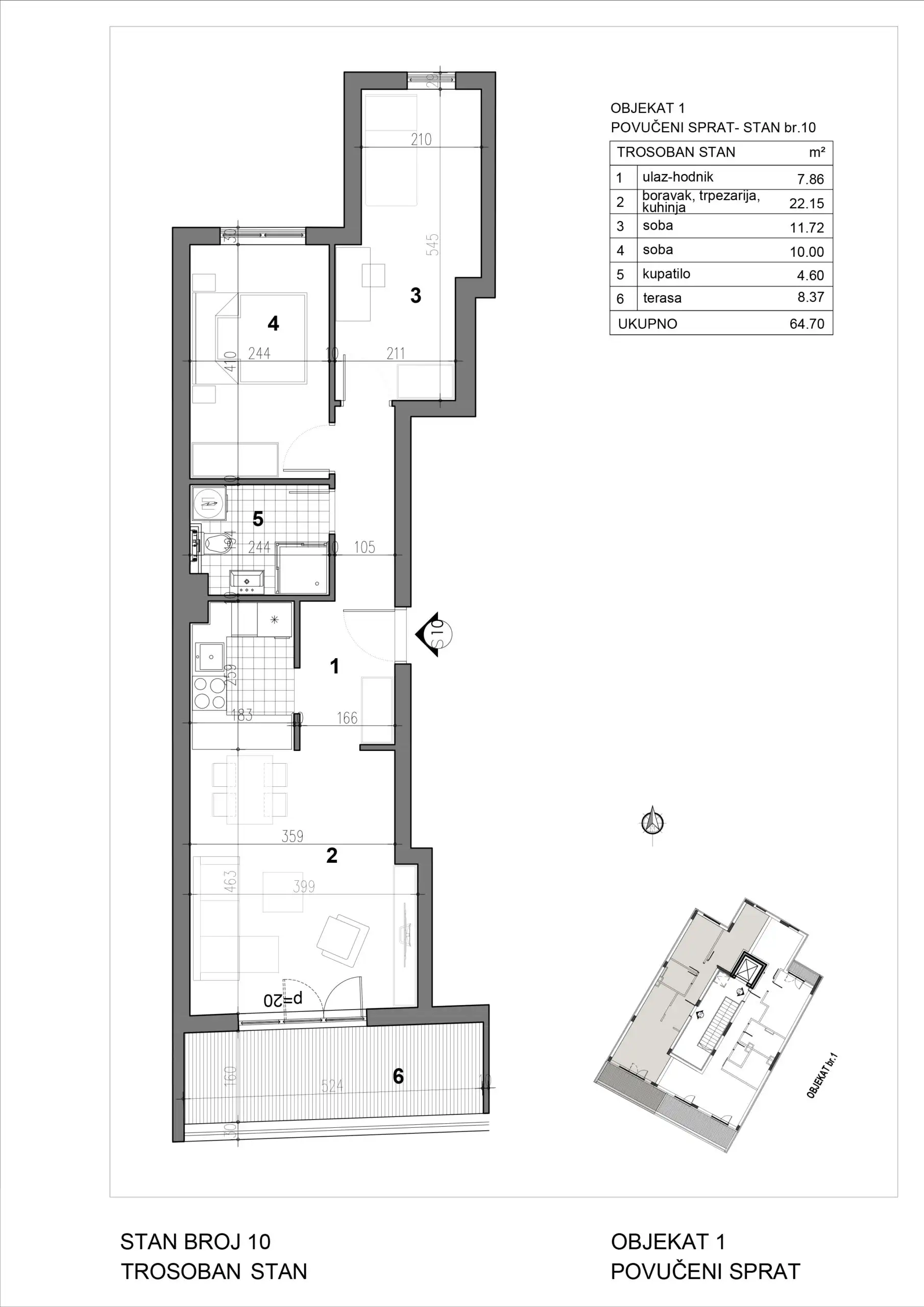
| Povučen sprat | Stan 10 | 64.70 | 2600€/m2 | trosoban | Prodato | Pogledajte nacrt |
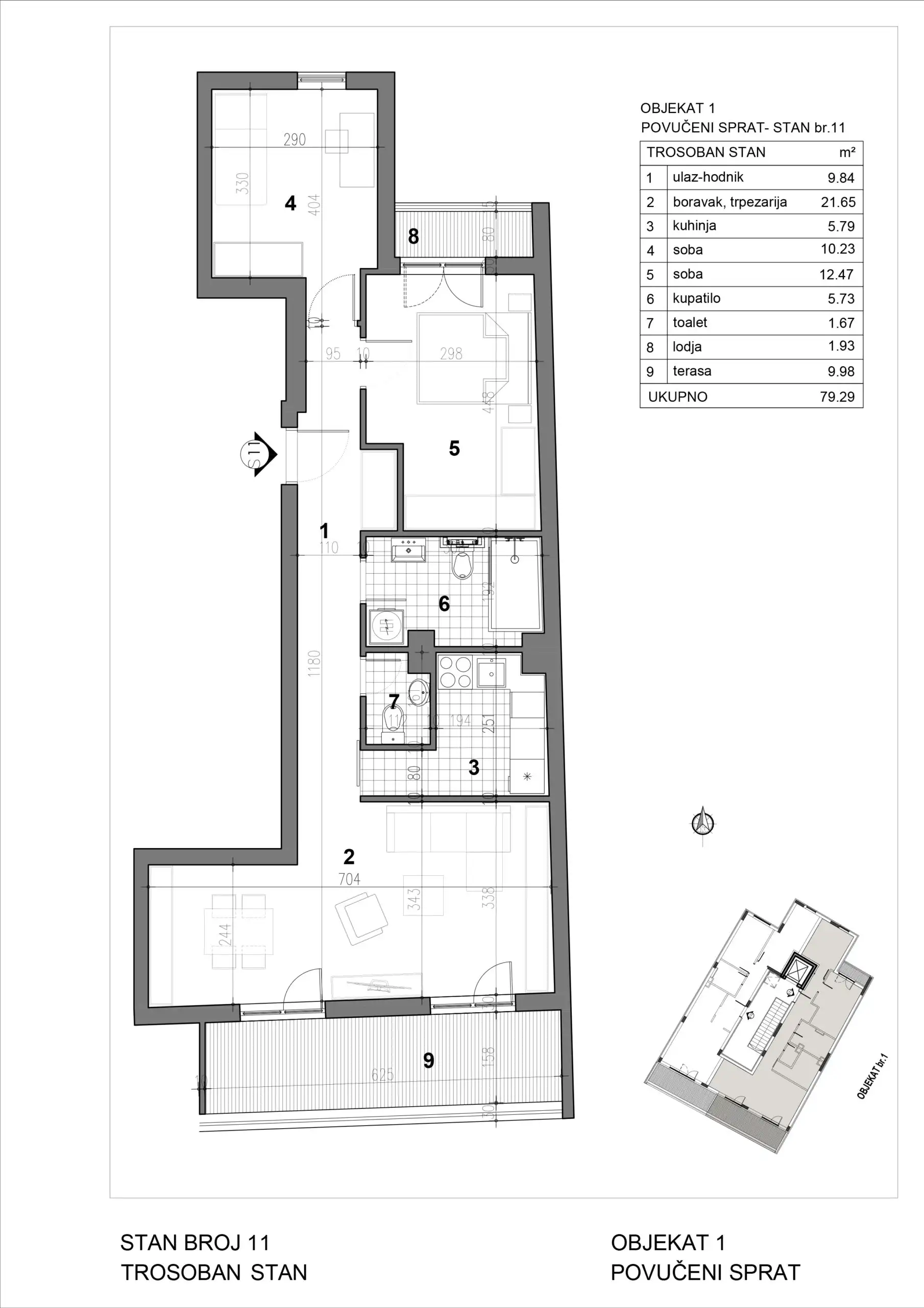
| Povučen sprat | Stan 11 | 79.29 | 2800€+pdv/m2 | trosoban | Slobodan | Pogledajte nacrt |
| OBJEKAT II | ||||||
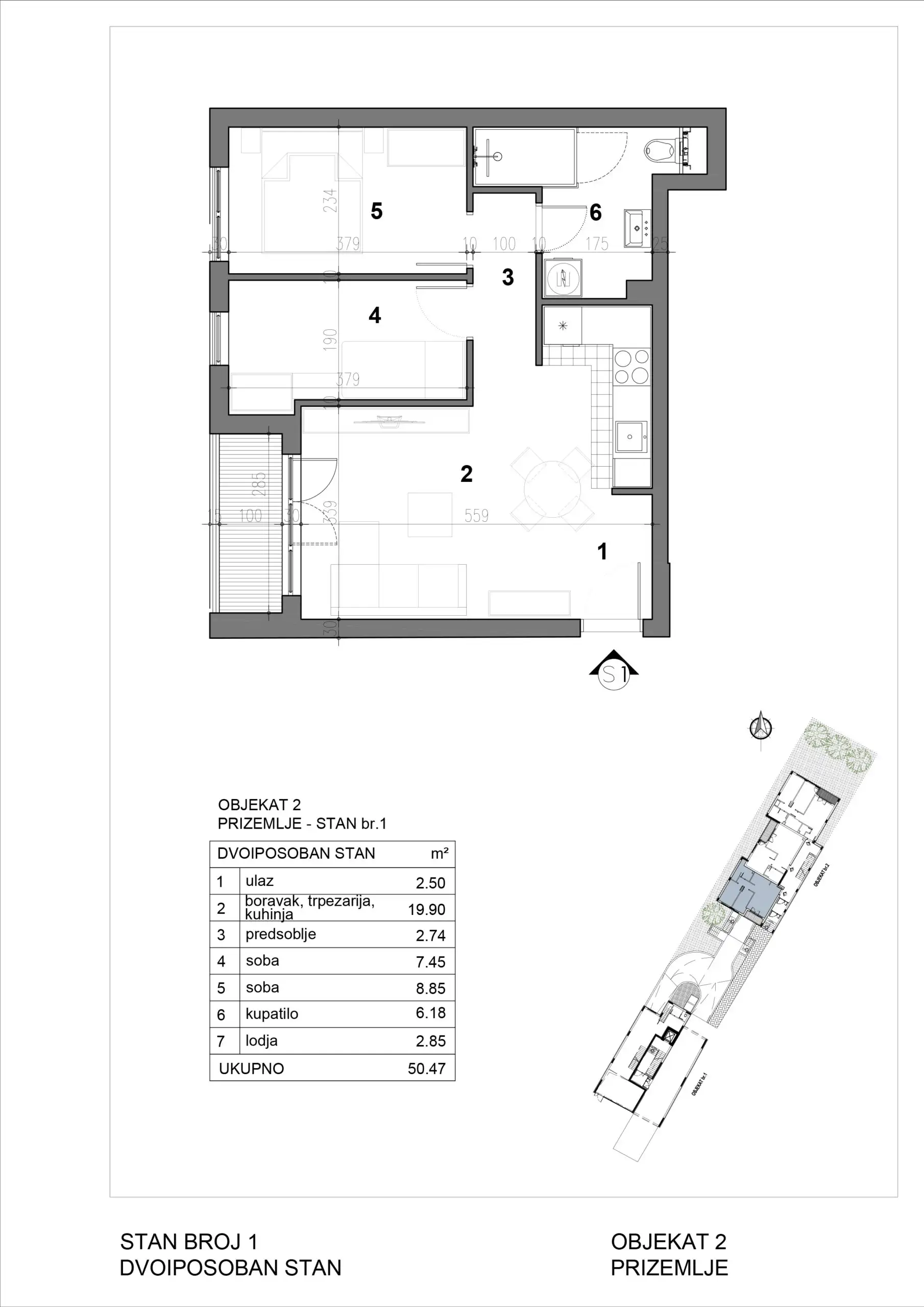
| Prizemlje | Stan 01 | 50.47 | 2600€/m2 | dvoiposoban | Prodato | Pogledajte nacrt |
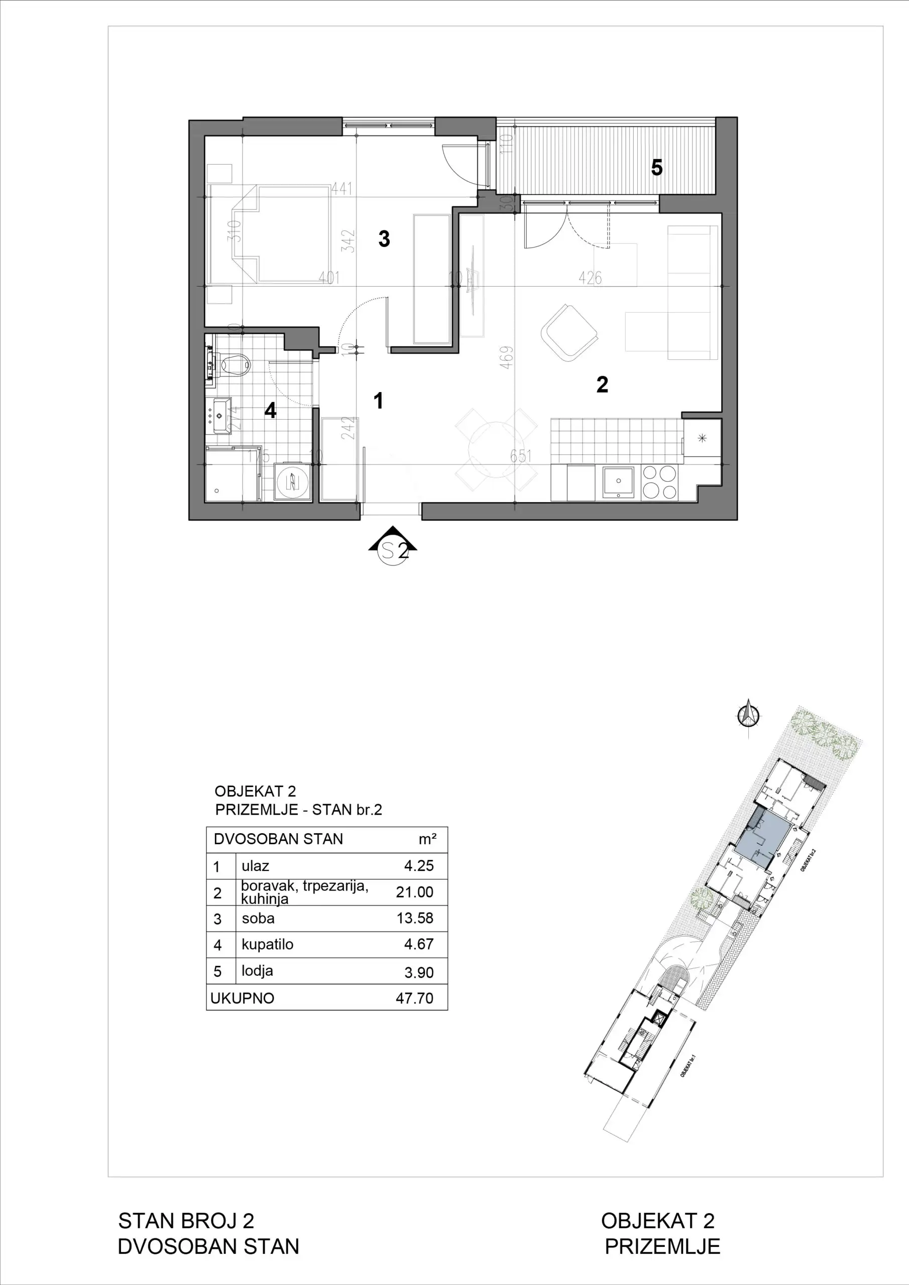
| Prizemlje | Stan 02 | 47.70 | 2600€/m2 | dvosoban | Prodato | Pogledajte nacrt |
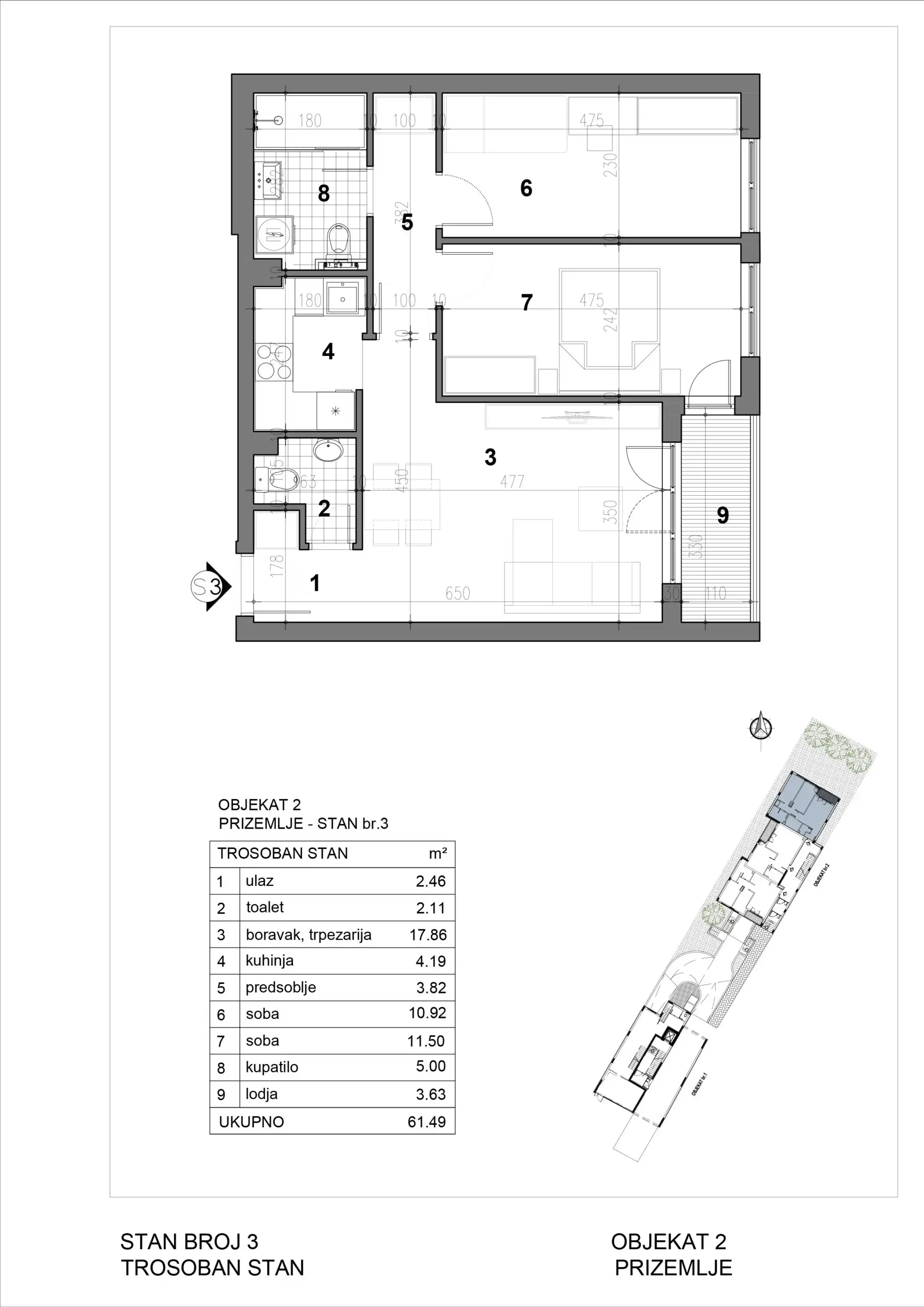
| Prizemlje | Stan 03 | 61.49 | 2600€/m2 | trosoban | Prodato | Pogledajte nacrt |
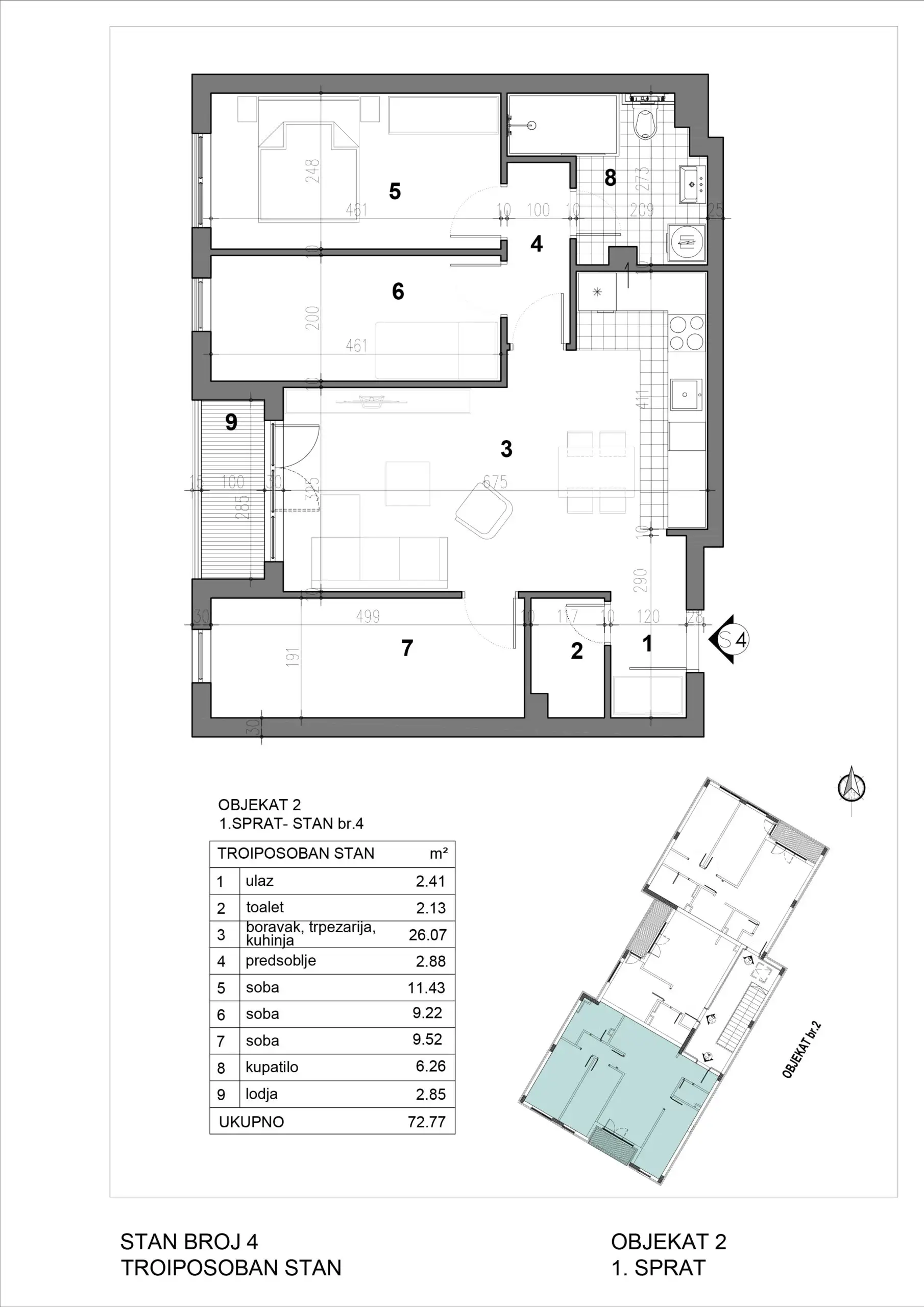
| I sprat | Stan 04 | 72.77 | 2600€/m2 | troiposoban | Prodato | Pogledajte nacrt |
| I sprat | Stan 05 | 40.42 | 2600€/m2 | jednoiposoban | Prodato | Pogledajte nacrt |
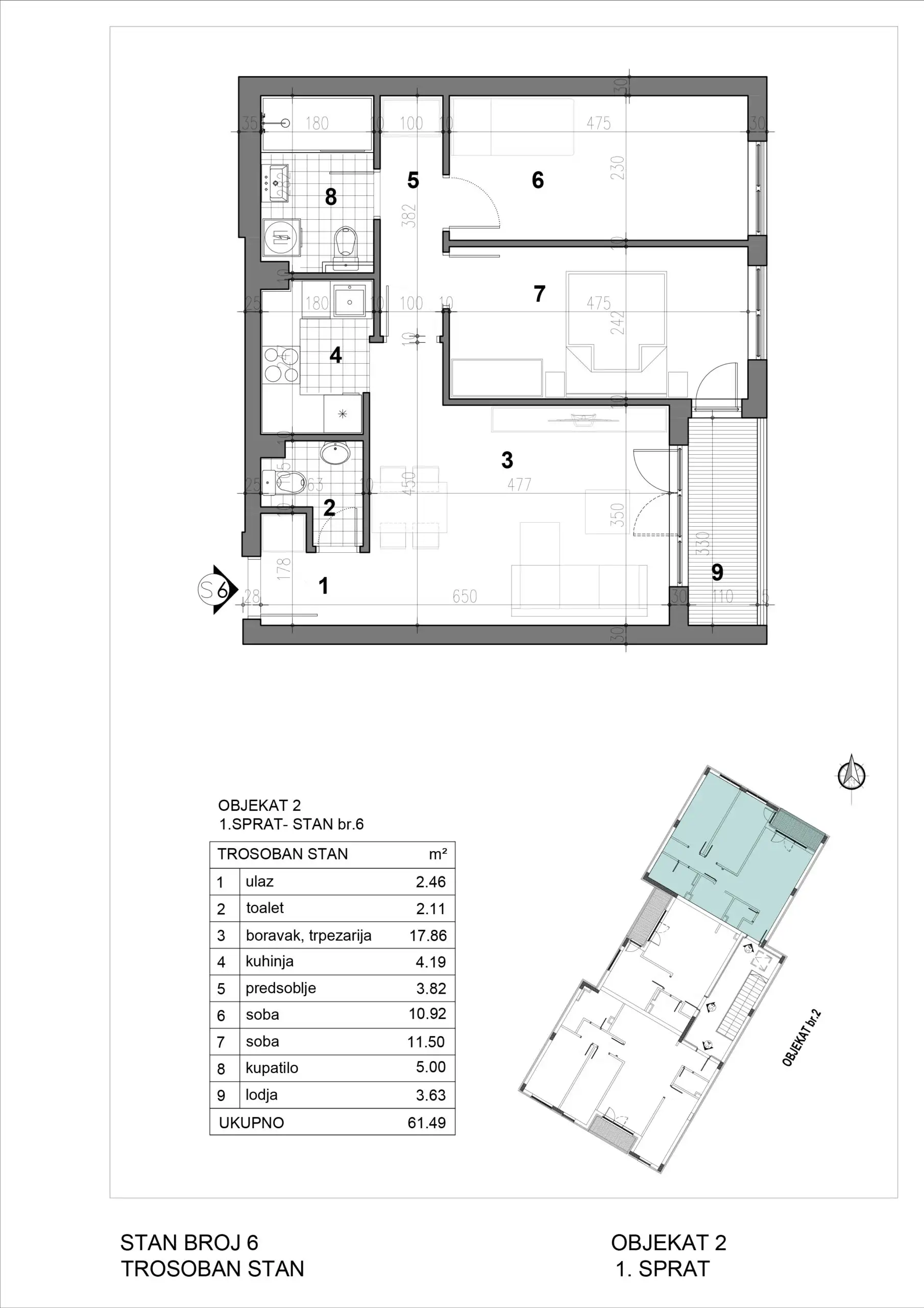
| I sprat | Stan 06 | 61.49 | 2600€/m2 | trosoban | Prodato | Pogledajte nacrt |